Thomson Brothers have recently completed a full refurbishment of this Type 27 Barbican flat in Seddon House. These work in progress shots were taken towards the end of February 2017 while we were still installing the kitchen, bathroom and various pieces of bespoke fitted furniture. Scroll down for more images, click any image for a larger view.
Next up (below) are a few shots of the early stages of another recent project in Shakespeare Tower as the initial strip out and first fix was underway....
Below are shots of another Barbican Tower project photographed in October 2015.
These photos were taken in October 2015 when Thomson Brothers had just started this full refurbishment in Cromwell Tower, The flat has been stripped back to a bare shell and you can see that we were just starting to build the new internal walls that will form the revised layout. The metal framing system for the new false ceilings is also being installed along with the first fix plumbing and electrics, Click any image for a larger view.
Thomson Brothers are about to complete this full refurbishment in Lauderdale Tower, I took these basic shots while taking additional measurements a few weeks ago. Hopefully I will be posting some more professional images of the finished project in August. Scroll down for more images, click any image for a larger view.
The space is being reconfigured with new stud walls constructed using our own method, developed to produce a very stable and refined end result, with crisp clean lines.
Click on the image above to view the proposed floor plan.
Several new en-suite shower/WCs are being fitted to service the bedrooms.
What was the Master Bedroom has been divided to create two children's bedrooms with an en-suite Shower/WC in one and a Guest Shower/WC off the newly formed corridor.
The shower valve for the newly installed Guest Shower/WC.
False ceilings are being installed throughout the property to allow for in-set spot lights as well as integrated speaker systems and network cabling.
The main bathroom is in the early stages of being re-fitted.
More neat copper work, sadly destined to be concealed behind the new "Wedi" board waterproof linings prior to tiling.
Thomson Brothers are currently engaged in the total refit of this Barbican Tower flat.
In this daring scheme, the non-structural walls that originally formed the four bedroom spaces have been removed. They are being replaced by new "walls" formed from double sided bookcases and wardrobes, creating a new study space in the center of the flat with ample storage for books and files as well as a generously sized wardrobe in the remaining bedroom.
Click on this floor plan to see a larger image of how the new space is divided up.
The study bookcases are being spray painted insitu with surrounding windows and ceilings masked off.
The interior carcass of the wardrobes form the bedroom side of the new study's walls.
Re-fitting of the en-suite shower/WC is well underway.
Back to back bookcases forming the walls of the new study are also visible in the corridor, waiting for a coat of paint and for their adjustable shelves to be fitted.
New doors will be fitted to the existing hall service cupboard.
The new kitchen has yet to be fitted. A large"serving hatch" still needs to be cut in the kitchen wall beyond the newly formed curved section in the foreground.
As always, it's difficult to ignore the amazing views at this height!
The formers for the new section of curved wall are still visible in the shell of what will be the new kitchen.
Check back again soon to see the finished Barbican Tower Flat project.
Below: Work in progress shots form June 2012
Thomson Brothers are currently working on a number of projects at the Barbican and also in nearby Florin Court. This page will give you a visual insight into the refurbishment process. Scroll down for more images.
Detailed drawings were prepared for the tiny kitchen in this studio flat in Florin Court. Click image to enlarge.
A new wardrobe will house a pull-down double bed in the studio room.
The very compact kitchen in the early stages of being re-fitted.
The bathroom will be almost as compact as the kitchen.
The drawing prepared for the small bathroom, click on the image for a larger view
Re-decoration is also underway while the new kitchen and bathroom are being fitted.
In a second studio flat, another wardrobe with pull-down double bed is being fitted
Another compact bathroom in the process of being fitted at Florin Court.
It has been possible to include a surprising amount of storage for such small kitchens. A Domino hob and combination microwave will be provided for cooking plus an integrated under counter fridge with an ice box.
The sink, worktops, glass splash backs and new floor coverings are still to be fitted.
Second fix electrics and plumbing are also still to come along with painting and decoration.
A view of work in progress from the communal hallway.
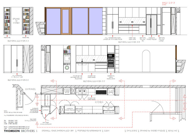
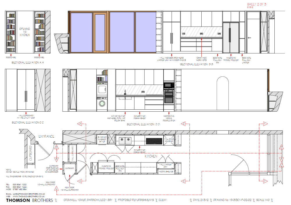
In the following images Thomson Brothers are in the early stages of this complete refurbishment of a flat in Cromwell Tower. Above is a page from the drawings we prepared for the project. Click for a larger view.
The flat has been stripped out and some of the new stud walls are being built, here you can see the nib walls which will form bookcases either side of the kitchen opening.
The old kitchen has been completely removed along with the Garchey, ready for the first fix plumbing and electrics to begin.
Copies of our plans can be seen in the foreground taped to the window, they are a useful guide for all the trades working on the project.
Where required, new stud work will match the dimensions and style of the original Barbican internal walls and blend in seamlessly when completed.
It can look a bit alarming in the early stages when rooms such as this shower/WC have been striped back ready for re-tiling but it will not be long before rapid progress is made with the re-fit.
In the bathroom the re-fit is already well underway. Walls are being built out to accommodate the plumbing, avoiding the need to chase into any structural walls. Water proof tile board is used to line the walls before tiling to ensure that there will be no problems with water ingress when the bathroom is in use.
Another current project in Lauderdale Tower is further along and nearing completion. Above is the drawing we prepared for the bathroom. Click on the image to enlarge.
The new bathroom is nearly finished.
Freshly installed mirrored cabinets with concealed lighting in the Shower/WC
A new shower tray has been installed in place of the higher level bidet style original.
(Some clients prefer us to restore the finish on the origianl Barbican shower tray)
Our drawing prepared for the shower/WC. Click the image to see more detail.
A new wardrobe interior and doors are being fitted in the master bedroom.
One of our crew adds finishing touches to the wardrobe doors














































































